Facade
Two types of materials can be used in facade decoration:
1. Swiss panels Swisspearl
2. Larch wood finishing
Swisspearl panels in white are standard by default.
It is possible to order facade finishing with Swisspearl panels in other colours:

You can find out about the possible options for facade solutions and color shades on the Swisspearl website.
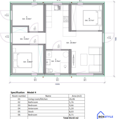
Equipment Model 4
Additional options
Preparatory work
Preparatory work must be carried out before installing the house on the site.
Preparatory work is not included in the price of the house and is paid additionally by the buyer.
Technical specifications

Model NORDIC 60



